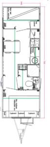
Aansluiten:
2x Stroomkabel 230v (indien mogelijk 2 vrije groepen)
1x Aanvoerslang voor water 3/4”
1x Afvoerslang 1”
Wij sluiten de woonunits compleet voor u aan.
Alle kabels en slangen worden meegeleverd.
Indien mogelijk alle aansluitingen binnen 25 meter van de standplaats, mocht dit niet lukken dan graag vooraf aangeven.
